Espace propriétaire
fr
Alerte e-mail

Votre recherche

Menton (06500)

3 pièces - 67,70 m²

3 PIECES FRONT DE MER

555 000 €
Ref : 608
A propos de ce bien

Votre agence vous propose à la vente, en front de mer à Menton, ce bel appartement traversant de 3 pièces situé dans une résidence de standing.

D’une superficie d’environ 68 m², cet appartement lumineux offre un agencement fonctionnel et agréable. Il se compose d’un spacieux séjour ouvrant sur une terrasse avec une vue imprenable sur la mer, ainsi que d’une cuisine indépendante.

L’espace nuit comprend deux chambres avec placards, chacune donnant accès à un balcon. Une salle de bains et un WC indépendant complètent ce bien.

Possibilité d’acquérir un garage en supplément.

Un bien rare, à seulement quelques pas des plages, des commerces et de toutes les commodités.

Descriptif de ce bien
Général
Code postal 06500
Surface loi Carrez (m²) 67,70 m²
Nombre de chambre(s) 2
Nombre de pièces 3
Etage 3
Ascenseur OUI
Vue MER
Détails
Nb de salle de bains 1
Cuisine Séparée
Mode de chauffage Autre
Type de chauffage Autre
Format de chauffage Collectif
Interphone OUI
Balcon OUI
Terrasse OUI
Cave OUI
Surface cave (m²) 3
Exposition Sud
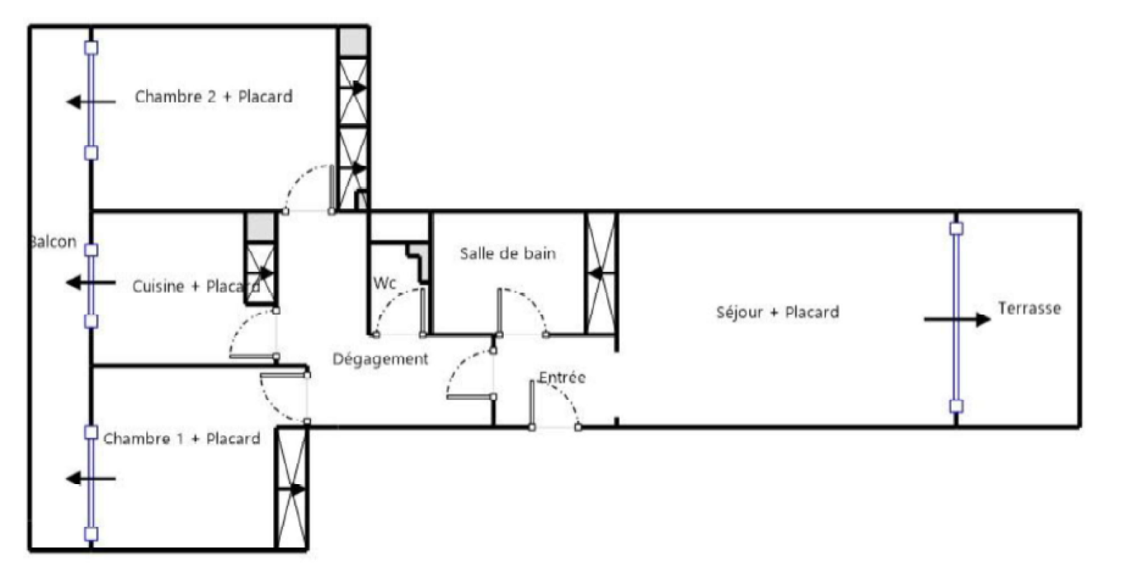
Composition
Rez de chaussée
entrée 4.8 m²

salon/sejour 20.5 m²

terrasse 7 m²

FACE MER

salle de bain 4.6 m²

dégagement 6.2 m²

chambre 11.4 m²

cuisine 6.1 m²

chambre 12.5 m²

balcon 8.7 m²

COTE CHAMBRES

WC

cave 3.5 m²

Financier
Prix de vente 555 000 €
Les honoraires d'agence seront intégralement à la charge du vendeur  
Taxe foncière annuelle 1 546 €
Energie
DPE GES
Autour du bien
  • Commerces et santé
  • Loisirs
  • Ecoles
  • Transports
  • Pratique
Contacter pour ce bien
L'agence
Téléphone 09 83 96 14 54
Adresse
5 Rue Saint-Michel 06500 Menton

* Champ obligatoire

Les informations recueillies sur ce formulaire sont enregistrées dans un fichier informatisé par La Boite Immo agissant comme Sous-traitant du traitement pour la gestion de la clientèle/prospects de l'Agence / du Réseau qui reste Responsable du Traitement de vos Données personnelles. La base légale du traitement repose sur l'intérêt légitime de l'Agence / du Réseau. Elles sont conservées jusqu'à demande de suppression et sont destinées à l'Agence / au Réseau. Conformément à la loi « informatique et libertés », vous disposez des droits d’accès, de rectification, d’effacement, d’opposition, de limitation et de portabilité de vos données. Vous pouvez retirer votre consentement à tout moment en contactant directement l’Agence / Le Réseau. Consultez le site https://cnil.fr/fr pour plus d’informations sur vos droits. Si vous estimez, après avoir contacté l'Agence / le Réseau, que vos droits « Informatique et Libertés » ne sont pas respectés, vous pouvez adresser une réclamation à la CNIL. Nous vous informons de l’existence de la liste d'opposition au démarchage téléphonique « Bloctel », sur laquelle vous pouvez vous inscrire ici : https://www.bloctel.gouv.fr Dans le cadre de la protection des Données personnelles, nous vous invitons à ne pas inscrire de Données sensibles dans le champ de saisie libre.
Ce site est protégé par reCAPTCHA, les Politiques de Confidentialité et les Conditions d'Utilisation de Google s'appliquent.

Découvrir nos outils